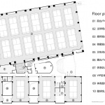
Li Xuerui Public Fitness Center by Welive ArchitectsRuì – The appearance of a sprouting blade of grass 2026-02-03 Project SpecsDesign:WeLive ArchitectsLocation: China Type: Architecture Materials: Metal Concrete Coating Glass Tags: Chongqing Category: Sports Architecture Gymnasium(Indoor Sports Facility) Fitness center 版权️©谷德设计网gooood.cn,禁止以gooood编辑版本进行任何形式转载Copyright©goooodClick to contact with the designer/authorWeLive ArchitectsChinaRecommended Jobs Submit a JobAll Jobs »Latest Jobs Submit a JobAll Jobs » Post a Comment You need to login to post comment Social LoginPreviousOrange Fence by TAGOrange Fence by TAGNextTerrarium House by Unknown Surface StudioTerrarium House by Unknown Surface StudioLatest2025 ASLA GENERAL DESIGN AWARD OF HONOR: Waterloo Park / Michael Van Valkenburgh Associates, Inc.2025 ASLA GENERAL DESIGN AWARD OF HONOR: Waterloo Park / Michael Van Valkenburgh Associates, Inc. Random Jobs Submit your jobAll jobs »Jobs Post positions» Sort by districtsAll|Northern China|Middle China|Southern China