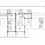
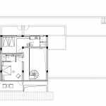
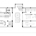
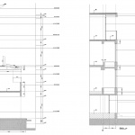
Come Wild Mountain Bamboo by DEPARTURE DESIGN STUDIOThe Black House in Bamboo Forest 2025-12-05 Project SpecsDesign:DPAA DESIGN StudioLocation: China Type: Architecture Materials: Wood Metal Steel Tile Concrete Plant Tags: Anji Category: Hospitality Cabins and Lodges Garden Hotels Restaurant 版权️©谷德设计网gooood.cn,禁止以gooood编辑版本进行任何形式转载Copyright©goooodClick to contact with the designer/authorDPAA DESIGN StudioChinaRecommended Jobs Submit a JobAll Jobs »Latest Jobs Submit a JobAll Jobs » Post a Comment You need to login to post comment Social LoginPreviousQinghe INNNG International Talent Community by Zhu Xiaodi Architects + Beijing Institute of Architectural Design Co., Ltd.Qinghe INNNG International Talent Community by Zhu Xiaodi Architects + Beijing Institute of Architectural Design Co., Ltd.NextCentral Park tower by Group ACentral Park tower by Group ALatestLandscape Enhancement Along Linghu Avenue in Wuxi by MYP INC.Landscape Enhancement Along Linghu Avenue in Wuxi by MYP INC. Random Jobs Submit your jobAll jobs »Jobs Post positions» Sort by districtsAll|Northern China|Middle China|Southern China