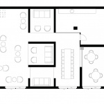
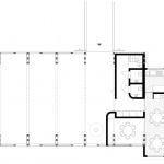
Timber restaurant by OFFICE INNFunction as an insert, not a rebuild 2026-03-18 Project SpecsDesign:OFFICE INAINNLocation: Norway Type: Architecture Materials: Finishes decorative-panels Wood Coating Glass Tags: Norway Møre og Romsdal Category: Hospitality Commercial Architecture Restaurant 版权️©谷德设计网gooood.cn,禁止以gooood编辑版本进行任何形式转载Copyright©goooodClick to contact with the designer/authorOFFICE INAINNRecommended Jobs Submit a JobAll Jobs »Latest Jobs Submit a JobAll Jobs » Post a Comment You need to login to post comment Social LoginPreviousCoach Ginza Flagship by CURIOSITYCoach Ginza Flagship by CURIOSITYNextWinery Tenute Maestrale by Spaziozero + X ArchitektenWinery Tenute Maestrale by Spaziozero + X ArchitektenLatestInteriors of Kulinarna Kamienica by Biuro Kreacja + M19 ArchitekciInteriors of Kulinarna Kamienica by Biuro Kreacja + M19 Architekci Random Jobs Submit your jobAll jobs »Jobs Post positions» Sort by districtsAll|Northern China|Middle China|Southern China