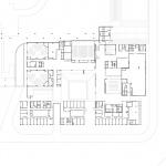
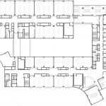
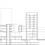
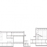
The Chinese University of Hong Kong, Shenzhen, Phase II by Wang Weijen ArchitectureMountain and Water: A Courtyard Terrace 2025-12-24 Project SpecsDesign:Wang Weijen ArchitectureLocation: China Type: Architecture Materials: Wood Ceramic Panel Blue brick Tags: Shenzhen Category: University College Educational Architecture Culture Architecture 版权️©谷德设计网gooood.cn,禁止以gooood编辑版本进行任何形式转载Copyright©goooodClick to contact with the designer/authorWang Weijen ArchitectureChinaRecommended Jobs Submit a JobAll Jobs »Latest Jobs Submit a JobAll Jobs » Post a Comment You need to login to post comment Social LoginPreviousZOLAND·Emei by Studio J. BridglandZOLAND·Emei by Studio J. BridglandNextThe Nancy And Rich Kinder Building For The Museum Of Fine Arts, Houston Celebrates Topping OutThe Nancy And Rich Kinder Building For The Museum Of Fine Arts, Houston Celebrates Topping OutLatestThe Chinese University of Hong Kong, Shenzhen, Phase II by Wang Weijen ArchitectureThe Chinese University of Hong Kong, Shenzhen, Phase II by Wang Weijen Architecture Random Jobs Submit your jobAll jobs »Jobs Post positions» Sort by districtsAll|Northern China|Middle China|Southern China