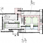
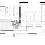
Renovation Design of Dongfang Mountain Buddhist Association by FANAFDialogue with Nature 2025-12-23 Project SpecsDesign:FANAFLocation: China Type: Architecture Materials: Wood Glass Tags: Renovation Hubei Category: Buddhist architecture Religious Architecure 版权️©谷德设计网gooood.cn,禁止以gooood编辑版本进行任何形式转载Copyright©goooodClick to contact with the designer/authorFANAFChinaRecommended Jobs Submit a JobAll Jobs »Latest Jobs Submit a JobAll Jobs » Post a Comment You need to login to post comment Social LoginPreviousBOXES Narrow Hall by Chengdu Beyond Space Architectural Design Co., Ltd.BOXES Narrow Hall by Chengdu Beyond Space Architectural Design Co., Ltd.NextWuxi Hefeng Experimental Primary School by MINAX ArchitectsWuxi Hefeng Experimental Primary School by MINAX ArchitectsLatestSA Townhouse by Tiago do Vale ArchitectsSA Townhouse by Tiago do Vale Architects Random Jobs Submit your jobAll jobs »Jobs Post positions» Sort by districtsAll|Northern China|Middle China|Southern China