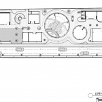
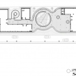
LUC Lifestyle by Atelier Generation Vasudeva DesignA Contemporary Lifestyle Destination Integrating Island Culture and Urban Commerce 2026-03-04 Project SpecsDesign:Atelier Generation Vasudeva DesignLocation: Indonesia Type: Architecture Materials: Stone Wood Metal Faced concrete Glass Tags: Bali Category: Hospitality Commercial Architecture Store Complex Restaurant 版权️©谷德设计网gooood.cn,禁止以gooood编辑版本进行任何形式转载Copyright©goooodClick to contact with the designer/authorAtelier Generation Vasudeva DesignIndonesiaRecommended Jobs Submit a JobAll Jobs »Latest Jobs Submit a JobAll Jobs » Post a Comment You need to login to post comment Social LoginPreviousPADI Rest Area by MIV ArchitectsPADI Rest Area by MIV ArchitectsNextLeaky Chamber Renovation, China by Atelier TreeLeaky Chamber Renovation, China by Atelier TreeLatestLUC Lifestyle by Atelier Generation Vasudeva DesignLUC Lifestyle by Atelier Generation Vasudeva Design Random Jobs Submit your jobAll jobs »Jobs Post positions» Sort by districtsAll|Northern China|Middle China|Southern China