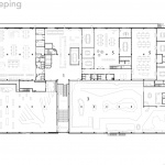
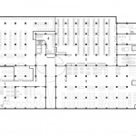
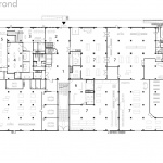
Keilepand by GROUP A + studioADAMSa dynamic transformation 2025-11-28 Project SpecsDesign:GROUP AStudio ADAMSLocation: Netherlands Type: Architecture Materials: Wood Oak Metal Tags: Rotterdam Category: Hospitality Office Exhibition Industrial Architecture Renovation Culture Architecture Activity center Restaurant 版权️©谷德设计网gooood.cn,禁止以gooood编辑版本进行任何形式转载Copyright©goooodClick to contact with the designer/authorGROUP ANetherlandsStudio ADAMSRecommended Jobs Submit a JobAll Jobs »Latest Jobs Submit a JobAll Jobs » Post a Comment You need to login to post comment Social LoginPreviousRenew City Plugins by PAORenew City Plugins by PAONextEL COPITAS bar by DA BUREAUEL COPITAS bar by DA BUREAULatestWinery project at Quinta de Adorigo by Atelier Sergio RebeloWinery project at Quinta de Adorigo by Atelier Sergio Rebelo Random Jobs Submit your jobAll jobs »Jobs Post positions» Sort by districtsAll|Northern China|Middle China|Southern China