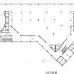
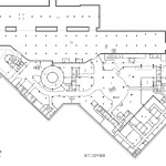
Guangzhou Zhongshan Eighth Road Integrated Transport Interchange Hub Development Project by Atelier Sun of Architectural Design and Research Institute of SCUT Co., LTD.a low-carbon integrated transport interchange 2025-11-06 Project SpecsDesign:Atelier Sun of Architectural Design & Research Institute of SCUT Co., Ltd.Location: China Type: Architecture Materials: Reinforced Concrete Glass Tags: Guangdong Guangzhou Category: Transportation Hub Transportation Public Space Metro Station Infrastructure Complex 版权️©谷德设计网gooood.cn,禁止以gooood编辑版本进行任何形式转载Copyright©goooodClick to contact with the designer/authorAtelier Sun of Architectural Design & Research Institute of SCUT Co., Ltd.ChinaRecommended Jobs Submit a JobAll Jobs »Latest Jobs Submit a JobAll Jobs » Post a Comment You need to login to post comment Social LoginPreviousPoppins Nursery school Karuizawa Kazakoshi by Nikken Sekkei LtdPoppins Nursery school Karuizawa Kazakoshi by Nikken Sekkei LtdNextMAS CADALT by FRAN SILVESTRE ARQUITECTOSMAS CADALT by FRAN SILVESTRE ARQUITECTOSLatestgooood archive: The designer's own residencegooood archive: The designer's own residence Random Jobs Submit your jobAll jobs »Jobs Post positions» Sort by districtsAll|Northern China|Middle China|Southern China