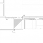
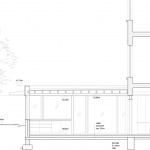
DIEU by NOTAN OFFICEA Transformation of Light, Nature,Structure, and Residential Flow 2026-01-29 Project SpecsDesign:Notan OfficeLocation: Belgium Type: Architecture Materials: Wood Metal Tags: Interior Design Small and Delicate Residence Brussels Category: Residential interior design Residential Architecture Residential renovation Single family house 版权️©谷德设计网gooood.cn,禁止以gooood编辑版本进行任何形式转载Copyright©goooodClick to contact with the designer/authorNotan OfficeBelgiumRecommended Jobs Submit a JobAll Jobs »Latest Jobs Submit a JobAll Jobs » Post a Comment You need to login to post comment Social LoginPreviousFolded Rooms Garden by RAD+arFolded Rooms Garden by RAD+arNextThe Switzerland Innovation Park - Hortus by Herzog & de MeuronThe Switzerland Innovation Park - Hortus by Herzog & de MeuronLatestXiamen Chang Museum by Xiamen Glab Lighting Design Co., LtdXiamen Chang Museum by Xiamen Glab Lighting Design Co., Ltd Random Jobs Submit your jobAll jobs »Jobs Post positions» Sort by districtsAll|Northern China|Middle China|Southern China