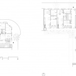
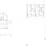
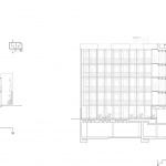
30+8 Social Housing Units in Palma de Mallorca by Vivas ArquitectosTradition and Sustainability in Social Housing 2025-11-08 Project SpecsDesign:Vivas ArquitectosLocation: Spain Type: Architecture Materials: Wood Metal Concrete Glass Rammed earth Tags: Interior Design Palma Category: Residential Apartment Residential interior design Residential Architecture Social Housing 版权️©谷德设计网gooood.cn,禁止以gooood编辑版本进行任何形式转载Copyright©goooodClick to contact with the designer/authorVivas ArquitectosSpainRecommended Jobs Submit a JobAll Jobs »Latest Jobs Submit a JobAll Jobs » Post a Comment You need to login to post comment Social LoginPreviousSchool Pavilion and Landscape by some + fuliSchool Pavilion and Landscape by some + fuliNextHouse of Quad by Thomas Parambil ArchitectsHouse of Quad by Thomas Parambil ArchitectsLatest2025 ASLA ANALYSIS AND PLANNING AWARD OF HONOR: Somerville Pollinator Action Plan / Offshoots, Inc.2025 ASLA ANALYSIS AND PLANNING AWARD OF HONOR: Somerville Pollinator Action Plan / Offshoots, Inc. Random Jobs Submit your jobAll jobs »Jobs Post positions» Sort by districtsAll|Northern China|Middle China|Southern China