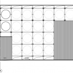
The Pause of Meaning by Atelier Jiandialogue between technology and humanism. 2025-12-19 Project SpecsDesign:Atelier JianLocation: China Type: Architecture Art Design Materials: PP Sheet galvanized steel Tags: Beijing Category: Public Space Art Installation Design installation 版权️©谷德设计网gooood.cn,禁止以gooood编辑版本进行任何形式转载Copyright©goooodClick to contact with the designer/authorAtelier JianChinaRecommended Jobs Submit a JobAll Jobs »Latest Jobs Submit a JobAll Jobs » Post a Comment You need to login to post comment Social LoginPreviousLima House by Pezo von EllrichshausenLima House by Pezo von EllrichshausenNextShanghai Midea Global Innovation Park by Atelier MA - BIAD + Shanghai TIANHUA Architecture Planning & Engineering Ltd.Shanghai Midea Global Innovation Park by Atelier MA - BIAD + Shanghai TIANHUA Architecture Planning & Engineering Ltd.Latest2025 ASLA GENERAL DESIGN AWARD OF HONOR: Waterloo Park / Michael Van Valkenburgh Associates, Inc.2025 ASLA GENERAL DESIGN AWARD OF HONOR: Waterloo Park / Michael Van Valkenburgh Associates, Inc. Random Jobs Submit your jobAll jobs »Jobs Post positions» Sort by districtsAll|Northern China|Middle China|Southern China