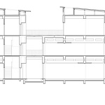
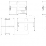
Moganshan Multicultural Circle Module B Complex by Aruma Architects Multiple interventions 2025-05-27 Project SpecsDesign: Aruma_ArchitectsLocation: China Type: Architecture Materials: Washed-stone Stone Concrete Glass Tags: Zhejiang Huzhou Category: Commercial Architecture Store Campus Retail 版权️©谷德设计网gooood.cn,禁止以gooood编辑版本进行任何形式转载Copyright©goooodClick to contact with the designer/author Aruma_ArchitectsRecommended Jobs Submit a JobAll Jobs »Latest Jobs Submit a JobAll Jobs » Post a Comment You need to login to post comment Social LoginPrevious Jiading Yuanxiang Lake central District Commercial and Office plot landscape by Weimar Group Jiading Yuanxiang Lake central District Commercial and Office plot landscape by Weimar GroupNextRing Music Studio & Living Room by Uygur ArchitectsRing Music Studio & Living Room by Uygur ArchitectsLatestMarconi-Lévinas school complex by Giovanni Maggioni + Mirko Noris + Valerio TolveMarconi-Lévinas school complex by Giovanni Maggioni + Mirko Noris + Valerio Tolve Random Jobs Submit your jobAll jobs »Jobs Post positions» Sort by districtsAll|Northern China|Middle China|Southern China