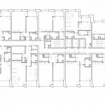
Lighthouse high-rise apartment by De Zwarte HondOptimizes both revenue and the quality of life 2025-12-18 Project SpecsDesign:De Zwarte HondLocation: Netherlands Type: Architecture Materials: decorative-panels Metal Aluminum sheet Brick Concrete Glass Tags: Eindhoven Category: Residential Apartment Residential Architecture Apartment Buildings Tower 版权️©谷德设计网gooood.cn,禁止以gooood编辑版本进行任何形式转载Copyright©goooodClick to contact with the designer/authorDe Zwarte HondNetherlandsRecommended Jobs Submit a JobAll Jobs »Latest Jobs Submit a JobAll Jobs » Post a Comment You need to login to post comment Social LoginPreviousOFFICE FACT NO.54 - MAT OfficeOFFICE FACT NO.54 - MAT OfficeNextChaka Wind - Chaka Salt Lake Tourist Railway Station by SUP Atelier of THAD + Beijing Tsinghua Tongheng Urban Planning & Design InstituteChaka Wind - Chaka Salt Lake Tourist Railway Station by SUP Atelier of THAD + Beijing Tsinghua Tongheng Urban Planning & Design InstituteLatestStorage barn in Utriai by Architectural Bureau G.Natkevicius & PartnersStorage barn in Utriai by Architectural Bureau G.Natkevicius & Partners Random Jobs Submit your jobAll jobs »Jobs Post positions» Sort by districtsAll|Northern China|Middle China|Southern China