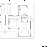
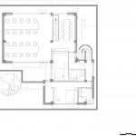
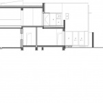
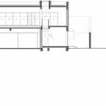
A House in Xueshan Village by DL AtelierA self-developed residential experiment integrating urban and rural areas 2025-12-02 Project SpecsDesign:DL AtelierLocation: China Type: Architecture Materials: Stone Wood Metal panel Reinforced Concrete Tags: Beijing Category: Residential Apartment Residential Architecture Single family house 版权️©谷德设计网gooood.cn,禁止以gooood编辑版本进行任何形式转载Copyright©goooodClick to contact with the designer/authorDL AtelierChinaRecommended Jobs Submit a JobAll Jobs »Latest Jobs Submit a JobAll Jobs » Post a Comment You need to login to post comment Social LoginPreviousSchieblocks by MVRDVSchieblocks by MVRDVNextBEYOND VENICE by Carlo Ratti AssociatiBEYOND VENICE by Carlo Ratti AssociatiLatestBlueriot Deveron Workspace by CISARSTUDIOBlueriot Deveron Workspace by CISARSTUDIO Random Jobs Submit your jobAll jobs »Jobs Post positions» Sort by districtsAll|Northern China|Middle China|Southern China