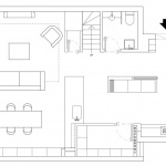
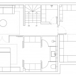
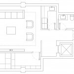
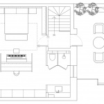
A Home About Natural Materials and Time by NOTHING DESIGNLong-termist residence in a four-story villa in Beijing 2026-04-13 Project SpecsDesign:NOTHING DESIGNLocation: China Type: Architecture Materials: Stone Wood Metal Tile Coating Glass Tags: Beijing Interior Design Category: Residential interior design Residential Architecture Villa Single family house 版权️©谷德设计网gooood.cn,禁止以gooood编辑版本进行任何形式转载Copyright©goooodClick to contact with the designer/authorNOTHING DESIGNChinaRecommended Jobs Submit a JobAll Jobs »Latest Jobs Submit a JobAll Jobs » Post a Comment You need to login to post comment Social LoginPrevious Klättermusen Flagship Store Dalian by odd(okamoto deguchi design) Klättermusen Flagship Store Dalian by odd(okamoto deguchi design)NextL’appartement Hu by OUJL’appartement Hu by OUJLatest2026 Asia Urban Renewal Awards2026 Asia Urban Renewal Awards Random Jobs Submit your jobAll jobs »Jobs Post positions» Sort by districtsAll|Northern China|Middle China|Southern China