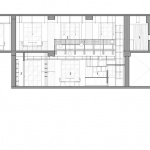
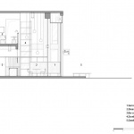
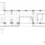
Spring Patio by amass Allowing the space to remain open, adaptable, and continuously in use. 2026-04-01 Project SpecsDesign:amassLocation: China Type: Architecture Materials: Cemented carbide concrete Red bricks Wood Ceramic Concrete Coating Tags: Sichuan Interior Design Chengdu Renovation Category: Hospitality Commercial Architecture Restaurant 版权️©谷德设计网gooood.cn,禁止以gooood编辑版本进行任何形式转载Copyright©goooodClick to contact with the designer/authoramassChinaRecommended Jobs Submit a JobAll Jobs »Latest Jobs Submit a JobAll Jobs » Post a Comment You need to login to post comment Social LoginPreviousSuzhou High School Zhengyi Campus by 9-Town Design Studio for Urban ArchitectureSuzhou High School Zhengyi Campus by 9-Town Design Studio for Urban ArchitectureNextCloudtower Grafenegg by tnE ArchitectsCloudtower Grafenegg by tnE ArchitectsLatest2025 ASLA RESIDENTIAL DESIGN AWARD OF HONOR: Springy Banks / LaGuardia Design Group2025 ASLA RESIDENTIAL DESIGN AWARD OF HONOR: Springy Banks / LaGuardia Design Group Random Jobs Submit your jobAll jobs »Jobs Post positions» Sort by districtsAll|Northern China|Middle China|Southern China