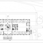
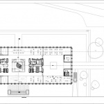
Metyis Digital Campus by UNUM A clear, elegant, and timeless architectural gesture 2025-11-06 Project SpecsDesign:UNUMLocation: Portugal Type: Architecture Materials: Stone Marble Wood Metal Glass Tags: Gondomar Category: Office Office Building Commercial Architecture Campus 版权️©谷德设计网gooood.cn,禁止以gooood编辑版本进行任何形式转载Copyright©goooodClick to contact with the designer/authorUNUMPortugalRecommended Jobs Submit a JobAll Jobs »Latest Jobs Submit a JobAll Jobs » Post a Comment You need to login to post comment Social LoginPreviousCasa 1000 Fiori by Ceresa Grandis ArchitettiCasa 1000 Fiori by Ceresa Grandis ArchitettiNext建筑友好型光伏:工商业屋面安全与收益的破局关键建筑友好型光伏:工商业屋面安全与收益的破局关键LatestRethinking the Sky House by Krisanova Design StudioRethinking the Sky House by Krisanova Design Studio Random Jobs Submit your jobAll jobs »Jobs Post positions» Sort by districtsAll|Northern China|Middle China|Southern China