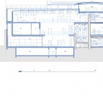
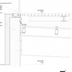
La Manufacture Cultural Center by MARS ArchitectesInteractive and Immersive Cultural Spaces 2026-03-09 Project SpecsDesign:MARS ArchitectesLocation: France Type: Architecture Materials: Stone Wood Metal Glass Tags: franche-de-Rouergue Building Renovation Category: Library Culture Center Culture Architecture 版权️©谷德设计网gooood.cn,禁止以gooood编辑版本进行任何形式转载Copyright©goooodClick to contact with the designer/authorMARS ArchitectesFranceRecommended Jobs Submit a JobAll Jobs »Latest Jobs Submit a JobAll Jobs » Post a Comment You need to login to post comment Social LoginPreviousdeTour 2025 by Napp Studio & ArchitectsdeTour 2025 by Napp Studio & ArchitectsNextCasa Cosmos by Architect Cristián NanzerCasa Cosmos by Architect Cristián NanzerLatestKAAP by Powerhouse Company + Orange Architects + NEXT architectsKAAP by Powerhouse Company + Orange Architects + NEXT architects Random Jobs Submit your jobAll jobs »Jobs Post positions» Sort by districtsAll|Northern China|Middle China|Southern China