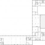
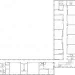
Kunst-As Arts Campus by FELT + Oskar ArchitectenA Cultural Cornerstone Framing the Chapel and City Block 2026-03-02 Project SpecsDesign:FELT architectuur & designOskar ArchitectenLocation: Belgium Type: Architecture Materials: Ceramic Tiles Metal Concrete Glass Tags: East Flanders Category: Teaching Buildings Educational Architecture Art studio Art space 版权️©谷德设计网gooood.cn,禁止以gooood编辑版本进行任何形式转载Copyright©goooodClick to contact with the designer/authorFELT architectuur & designBelgiumOskar ArchitectenBelgiumRecommended Jobs Submit a JobAll Jobs »Latest Jobs Submit a JobAll Jobs » Post a Comment You need to login to post comment Social LoginPreviousALMATY GATES by Davide Macullo ArchitectsALMATY GATES by Davide Macullo ArchitectsNextNorway’s National Park’s new visual identity / SnøhettaNorway’s National Park’s new visual identity / SnøhettaLatestKunst-As Arts Campus by FELT + Oskar ArchitectenKunst-As Arts Campus by FELT + Oskar Architecten Random Jobs Submit your jobAll jobs »Jobs Post positions» Sort by districtsAll|Northern China|Middle China|Southern China