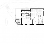
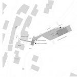
A green bridge by Roland Baldi ArchitectsKindergarten, daycare centre, tourist office, and village connection 2025-12-26 Project SpecsDesign:Roland Baldi architectsLocation: Italy Type: Architecture Materials: Wood Metal Faced concrete Tags: Barbian Category: Kindergarten Educational Architecture Tourist Facilities Complex 版权️©谷德设计网gooood.cn,禁止以gooood编辑版本进行任何形式转载Copyright©goooodClick to contact with the designer/authorRoland Baldi architectsItalyRecommended Jobs Submit a JobAll Jobs »Latest Jobs Submit a JobAll Jobs » Post a Comment You need to login to post comment Social LoginPreviousLe Regain by ElmēsLe Regain by ElmēsNextAlbignasego Auditorium Theatre by MD41Albignasego Auditorium Theatre by MD41LatestWave Cube·The Future Academy of Three-Body Problem by SAO(Scenic Architecture Office)Wave Cube·The Future Academy of Three-Body Problem by SAO(Scenic Architecture Office) Random Jobs Submit your jobAll jobs »Jobs Post positions» Sort by districtsAll|Northern China|Middle China|Southern China