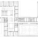
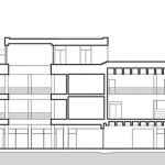
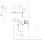
Union school VIDA by OVAA clearly defined and comprehensible public space 2025-12-05 Project SpecsDesign:OVALocation: Czech Type: Architecture Materials: Stone Brick Concrete Coating Glass Tags: Chýně Category: Gymnasium(Indoor Sports Facility) Elementary School Teaching Buildings Classroom Educational Architecture 版权️©谷德设计网gooood.cn,禁止以gooood编辑版本进行任何形式转载Copyright©goooodClick to contact with the designer/authorOVACzechRecommended Jobs Submit a JobAll Jobs »Latest Jobs Submit a JobAll Jobs » Post a Comment You need to login to post comment Social LoginPreviousMiel pavilion by Pezo von EllrichshausenMiel pavilion by Pezo von EllrichshausenNextVilla Nuri by Studio SaxeVilla Nuri by Studio SaxeLatestInternational Solicitation Announcement for the Functional Planning and Design Scheme of Xixing Old Street Historical and Cultural BlockInternational Solicitation Announcement for the Functional Planning and Design Scheme of Xixing Old Street Historical and Cultural Block Random Jobs Submit your jobAll jobs »Jobs Post positions» Sort by districtsAll|Northern China|Middle China|Southern China