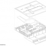
CASA PAULA by Luciano Kruk ArquitectosA project where connection with nature, appreciation for design, and readiness for teamwork converge 2026-04-09 Project SpecsDesign:Luciano Kruk ArquitectosLocation: Brazil Type: Architecture Materials: Metal Concrete Glass Tags: São Paulo Category: Residential interior design Residential Architecture Villa Single family house 版权️©谷德设计网gooood.cn,禁止以gooood编辑版本进行任何形式转载Copyright©goooodClick to contact with the designer/authorLuciano Kruk ArquitectosBrazilRecommended Jobs Submit a JobAll Jobs »Latest Jobs Submit a JobAll Jobs » Post a Comment You need to login to post comment Social LoginPreviousBomboti Casas by MYT+GLVDKBomboti Casas by MYT+GLVDKNextTwisting Tower and Spiral Station, Eco-infrastructures upon the sea of Shanghai by HCCH StudioTwisting Tower and Spiral Station, Eco-infrastructures upon the sea of Shanghai by HCCH StudioLatestCASA PAULA by Luciano Kruk ArquitectosCASA PAULA by Luciano Kruk Arquitectos Random Jobs Submit your jobAll jobs »Jobs Post positions» Sort by districtsAll|Northern China|Middle China|Southern China